三甲高松ビル603,604,605号【中新町】中央通りテナント

家賃 要問合せ

管理費等 ---

敷金 12カ月分

礼金 ---

償却金 ---

入居可能日
2025年11月上旬

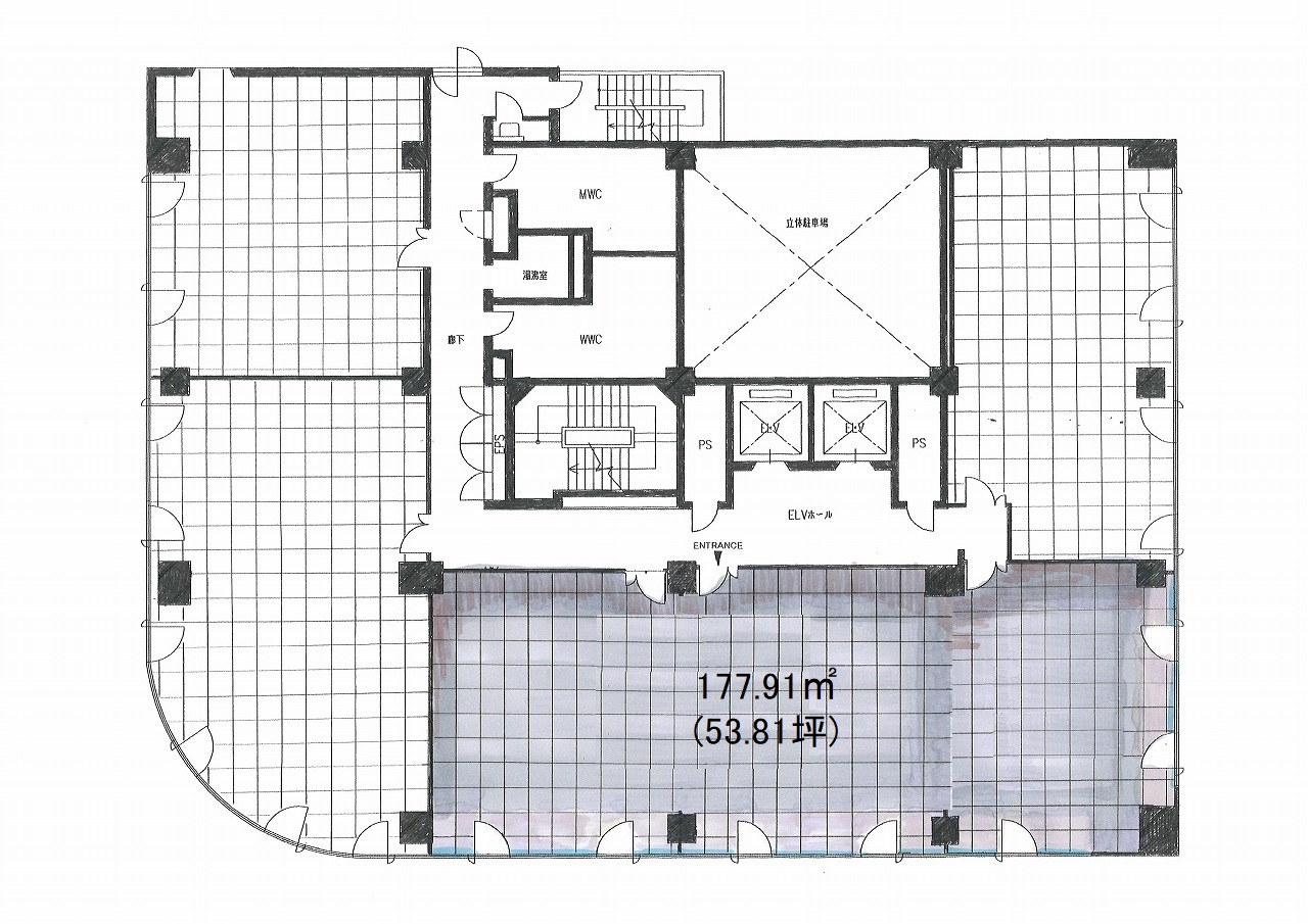
図面
tenantpic1tenantpic2tenantpic3tenantpic4tenantpic5tenantpic6tenantpic7tenantpic8tenantpic9

 家賃 要問合せ

 管理費等 ---

敷金
12カ月分
礼金
---
償却金
---
入居可能日
2025年11月上旬

建物情報

所在地 香川県高松市中新町11番地1
面積/坪数 177.91㎡/53.82坪
築年数 35年
取引態様

媒介

建物構造

鉄骨鉄筋コンクリート

駐車場

空有

用途地域

商業地域

交通 ことでん琴平線瓦町 徒歩9分
賃料 要問合せ円/月
敷金 12カ月分
精算方法 実費

基本情報

建物形態 事務所
オススメ業種 事務所
物件名 三甲高松ビル603,604,605号【中新町】中央通りテナント
物件の状態

空き

引き渡し時期 2025年11月上旬
契約形態・期間

普通契約2年

駐車場

空有

用途地域

商業地域

交通 ことでん琴平線瓦町 徒歩9分

設備情報

公営水道,公共下水,エアコン:有り/個別,共用トイレ,共用キッチン,利用時間:24時間,照明設備:有,内装業者指定:有,ガス:無,エレベータ:有/2基,給湯室:有/共用,床仕様:タイルカーペット,セキュリティ:機械警備,シャッター:有/自動

建物詳細

建物構造 鉄骨鉄筋コンクリート
建物階建て 地上8階
施工年月 1990年2月
契約面積 177.91㎡/53.82坪
駐車場:状況

空有

  所在地   香川県高松市中新町11番地1
  交通   ことでん琴平線瓦町 徒歩9分