WLC事務所204号【勅使町】テナント

家賃 90,200円/月

管理費等 6,050

敷金 3カ月分

礼金 ---

償却金 ---

入居可能日
相談

図面
tenantpic1tenantpic2tenantpic3tenantpic4tenantpic5tenantpic6tenantpic7tenantpic8tenantpic9tenantpic10tenantpic11tenantpic12tenantpic13

 家賃 90,200円/月

 管理費等 6,050

敷金
3カ月分
礼金
---
償却金
---
入居可能日
相談

建物情報

所在地 香川県高松市勅使町1168―1
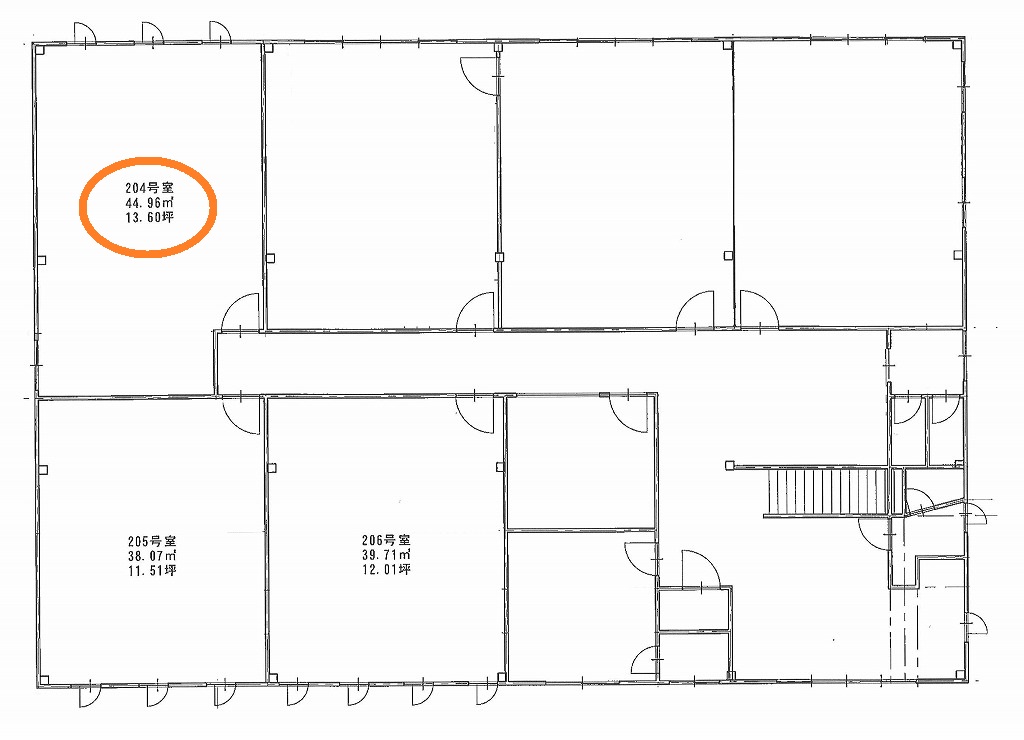
面積/坪数 44.96㎡/13.6坪
築年数 8年
取引態様

媒介

建物構造

鉄骨造

駐車場

空有

用途地域

準工業

交通 ことでん琴平線一宮 徒歩33分
賃料 90,200円/月
敷金 3カ月分
精算方法 実費

基本情報

建物形態 事務所
オススメ業種 事務所
物件名 WLC事務所204号【勅使町】テナント
物件の状態

空き

引き渡し時期 相談
契約形態・期間

普通契約2年

駐車場

空有

用途地域

準工業

交通 ことでん琴平線一宮 徒歩33分

設備情報

公営水道,浄化槽,エレベータ:無,専用キッチン,ネット環境:無,利用時間:24時間,シャッター:無,照明設備:有,内装業者指定:有,共用トイレ,共用キッチン,セキュリティ:無,給湯室:有/共用,キッチン:無,エアコン:有り/個別

建物詳細

建物構造 鉄骨造
建物階建て 地上2階
施工年月 2018年5月
契約面積 44.96㎡/13.6坪
駐車場:状況

空有

  所在地   香川県高松市勅使町1168―1
  交通   ことでん琴平線一宮 徒歩33分